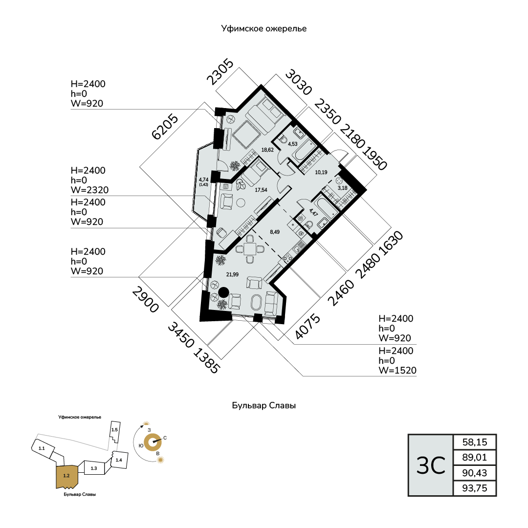
Купить трехкомнатную квартиру 90.43м², №140 в Лесное Ожерелье г. Уфа

Этаж 5, Квартира №140

Лесное Ожерелье, Литер Литер 1, Секция 2,
Сдача проекта
IV кв. 2028 г.
Общая площадь
90.43 м²
Жилая площадь
58.15 м²
Площадь кухни
8.49 м²
Отделка
Предчистовая
Комнат
3
Этаж
5/25
Тип
Квартира

Стоимость
по запросу
Оформите ипотеку
Ежемесячный платеж
* Вся информация носит справочный характер и не является публичной офертой
Заявка на ипотеку
Более 5 500 кв.м благоустроенных площадок для отдыха
Двухуровневый подземный паркинг
Отдельные велосипедные и колясочные комнаты
Посылочные для хранения доставленных товаров
Увеличенные окна с живописными видами
Террасы на первых этажах со входом со двора
Индивидуальные террасы и балконы
Уникальные квартиры в урбан-виллах
Высокие последние этажи до 6,3 м